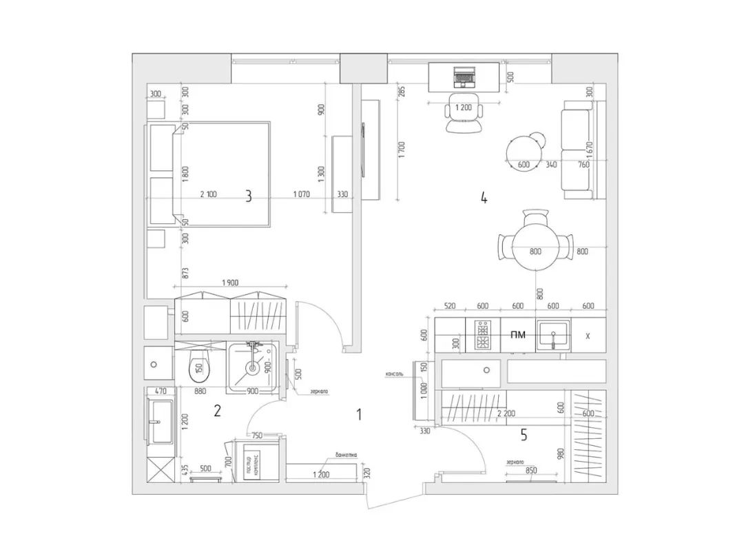
尽管面积有限,但设计师在每个区域都精心构思,旨在创造一个温馨、舒适的室内环境,以满足年轻女主人的愿望。整套住宅的主要设计理念围绕着温暖和自然元素展开。浅米色是主要的色调,搭配温暖的木质元素,使整个室内充满了自然的细致内饰。黑色细节的巧妙使用增加了空间的层次感,使其更加丰富。
【
】
客厅是这套住宅的核心,以温馨舒适为设计理念。浅灰色的布艺沙发搭配简洁的木质茶几和藤编地毯,创造了一个自然舒适的会客空间。沙发上的暖黄色抱枕增添了空间的色彩层次。大面的落地窗充分利用了自然光线,让整体空间更加通透明亮。墙上的镜子丰富了层次感,使客厅更加引人注目。
【




】
餐厅和厨房位于客厅的旁边,采用了开放式设计,充分利用有限的公共空间。主要的设计色调是原木色和白色,营造出温馨的氛围。原木材质的精细纹理丰富了空间的细节,使整体更显精致。圆形的小餐桌搭配原木餐椅,不仅美观而且实用,为业主提供了宜人的用餐场所。
【


】
卫生间以原木色为主色调,拥有简洁的设计和干湿分离的布局,兼具美观性和实用性。和谐的色调赋予人舒适的视觉感受,让卫生间成为一个宜人的空间。这套住宅在每个区域都体现了设计师的巧妙构思,为年轻女孩的生活提供了一个舒适而精致的居住环境。
【
】